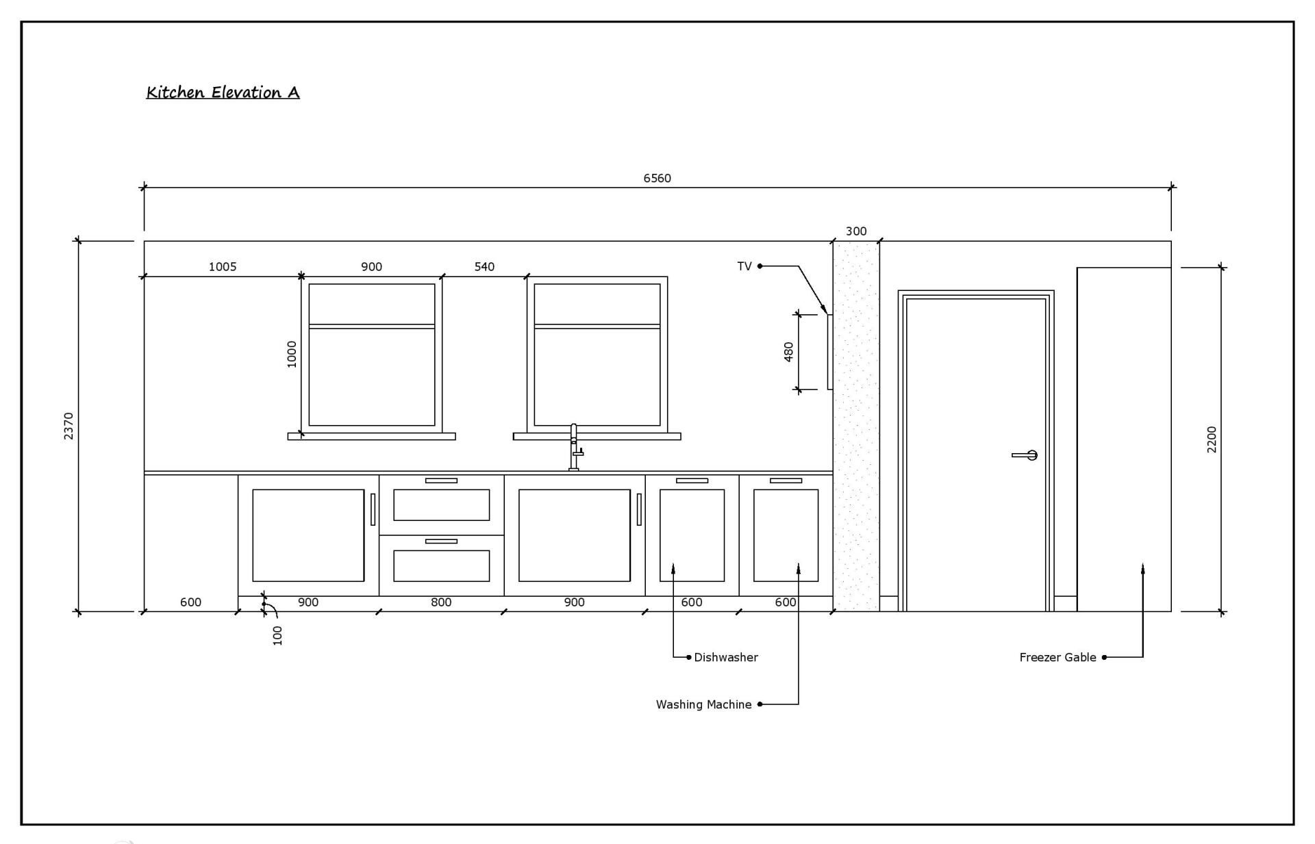
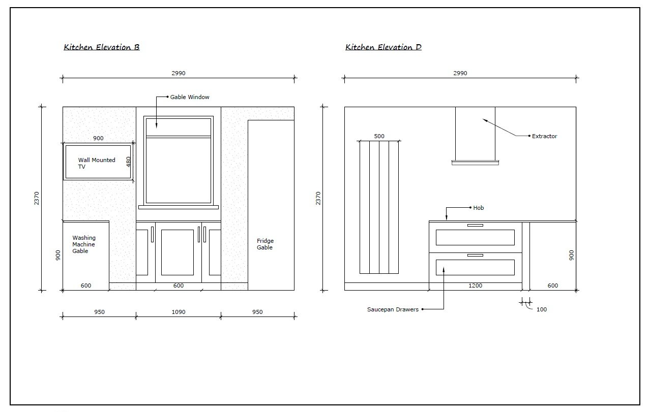
New Kitchen
This new kitchen is part of a complete property refurbishment.
The clients have lived in their 4 bed, 3 reception room property for 20 years. The property is well maintained but has become tired, dated and uninspiring.
During my first consultation I was given a free hand to come up with a design scheme which encompasses quality, comfortability and class.
This isn’t always easy to achieve as luxurious design schemes sometimes lose practicality. The clients didn’t want their newly designed home to feel like a show house where they felt they couldn’t relax and enjoy their home.





